Go-Ahead Given for Wine Bar in Kilmacolm

Councillors have agreed that empty retail premises in Kilmacolm can be turned into a wine bar.

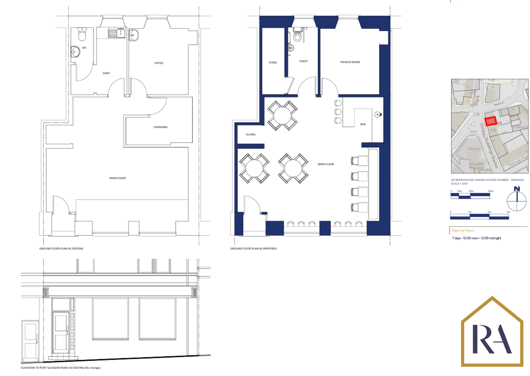
A change-of-use request for 2 Octavia Buildings, Bridge Of Weir Road, was approved by Inverclyde Planning Board.

More than 100 people had sent in messages in support and there were six objections. Planning officials had recommended approval.

Drawings included with the proposal show there will be seating for around 25 people in the venue.

This article appeared in Inverclyde Now.